This classic Chevy Chase kitchen renovation by Gilday Renovations was phase two of a project that began with an interior reconfiguration to convert a small, under-utilized back porch into a home office.
When this all began, the homeowners hadn’t considered how the porch project might impact their plans for a kitchen renovation later. The Gilday design team put significant thought into the layout of the future kitchen before work began on the office. This big picture planning was critically important to ensure a smooth transition between the phase 1 and phase 2 projects.
The kitchen had barely been improved since the original! The owners wanted to bring everything up to date while respecting the original character of the home.
Original Kitchen

To that end, the designers kept the existing millwork, window, and door casings. But they did recommend replacing the original triple window set above the sink with an energy efficient replica. However, the husband felt strongly about retaining that original architectural element. So we kept it.
Plumbing and electrical were modernized to make way for all new appliances, countertops, cabinets, and lighting.
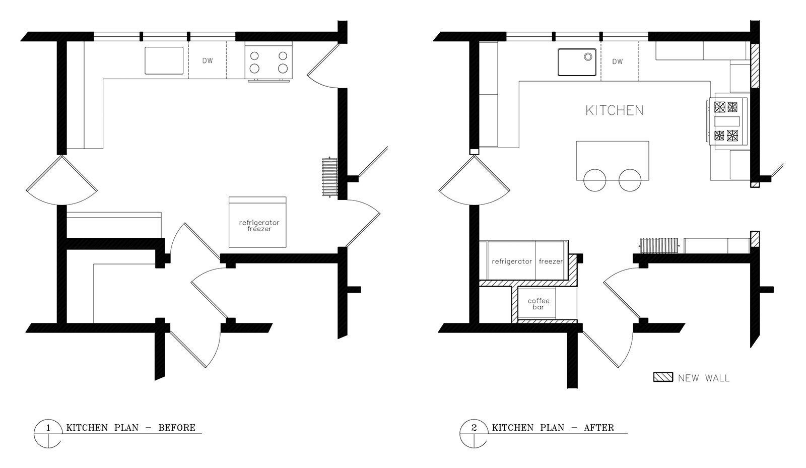
The original space had five doors interrupting the kitchen's workspace and circulation routes! Reconfiguring the floor plan reduced that to three doors, allowing for much-improved flow with additional counter space and cabinetry for storage.
Before & After Floor Plan

The homeowners were desperate for an island. But there wasn’t enough room for a full-sized island, and property boundaries would not allow a “bump out” to gain the extra space needed. The designers came up with the idea of a “perching” counter. It’s more of an “islet” than a fully equipped island, but gives them exactly what they most need.

The designers specified adjustments of inches to gain feet in utility. They also relocated the range and the refrigerator to different areas of the room. These small adjustments, made the entire room flow and function much more efficiently:

An elaborate crown detail was added above the cabinets to complete the aesthetic of what you would see in a 1920’s kitchen. The overall effect now is of an organized, smoothly integrated kitchen space with everything neatly in its place. And the design is appropriate to the period style of the home.
“We were impressed with the thoughtfulness of the design team and the craftsmanship of the carpenter assigned to our project. Gilday ensured we were happy with the end product. It was well worth the wait. We have been using the new kitchen for a year or two now and really appreciate the renovated space. It was just what we wanted.”
Kristine G., Chevy Chase
Learn about how to approach a kitchen design and remodeling project by downloading The Definitive Guide to Kitchen Design & Remodeling Success. If you are considering a home renovation, please feel free to schedule a home renovation discovery session with Gilday Renovations today.
Leave a comment