When a home is first purchased, the wish list is long. After a few years of living in the home, it is clear that the primary suite was not the highest priority. Now it is time to bring it to the top of the list.
Many DC-area homeowners are looking for greater privacy and relaxation in their primary suite due to lack of space or poor layouts. The dream for many is for the primary bath to be a sanctuary, a spa-like experience.
To get there, it is important to understand the current limitations of the space and find expert help to create the ideal primary bath, bedroom and closet configuration.
When considering a bathroom renovation, there are some common problems that tend to come up. Understanding the challenges and potential solutions leads to better decision-making.
If a home built in the 1950s, ‘60s, or ‘70s even had a primary suite bathroom, it was purely functional. It might have a shower/tub combo with a toilet right next to that, and a small sink next to that. Primary suites in the past twenty years are more spacious, but still often need updating to meet current needs and personal aesthetic desires.
Many homeowners are no longer interested in a shower and tub combo. Standing in a two-and-a-half-foot wide tub enclosure can become very claustrophobic, not to mention slippery. Separate showers and tubs are becoming more the expectation in a luxurious primary bathroom. Also, gone are the massive soaking tubs, taking up too much space in exchange for too little use.
But creating a spacious and beautiful primary bath is easier said than done in the current square footage and layout. What would be good to add or change? A bench or chair in the bathing area would be nice. A “wet room” where the shower and bath are in the same tiled area sounds amazing. The dream bathroom might include a steam shower, which requires some extra space for the steam generator.
Sometimes only one person uses the primary bath, but often it is shared with a significant other. Ideally, you want space and privacy for both to use the space without feeling cramped or self-conscious. One common solution is to add a toilet compartment separate from the bathing area for privacy. A toilet compartment with a door creates much desired separation.
If a space is going to look spa-like, it should feel spa-like too, and that means being comfortable from the moment one steps into the space. Heated floors take the chill off ceramic flooring. Heated floors are becoming more common, a must-have in a bathroom renovation.
Another comfort amenity that has become popular is the heated towel rack. These have benefits beyond warming your towels. They can function as a radiator for the room. In older homes, radiators take up critical space that could be better utilized. By replacing the radiator with a hydronic towel rack, you conserve precious space, maintain a heating source, and gain a handy place to keep your towels warm and dry. Electric towel bars that can be turned off and on as needed are also an option.
To create the optimal primary suite bath, there are three popular paths to choose from. Depending on the homeowner’s unique situation, one or more of these options could make sense.


It’s nice when space is not the issue. Sometimes the existing primary bath has plenty of room, it is just configured for a different family and/or a different era.
We worked with a client whose Chevy Chase condominium had two bathrooms separated by large closets, all connected to the primary suite. One bath had only a small shower. The other with a tub only. The goal was to create one large bathroom with a stand-alone tub and separate shower.
Then the fun began. This couple enjoyed watching sports while they prepared for the day, so requested television screens as part of the renovation. One is recessed into a niche above the tub, and another is hidden behind the vanity mirror. So, from the sink, tub, or shower, they did not have to miss a second of the game.
One challenge we had to overcome was that the condo association prohibits drilling through the structural concrete floors and ceilings to install additional drains or conduits. By examining the building plans, our architect found a drain that had been stubbed in as part of the original condo plan, but a fixture was never installed. We used that to create the tub and shower configurations the clients desired.


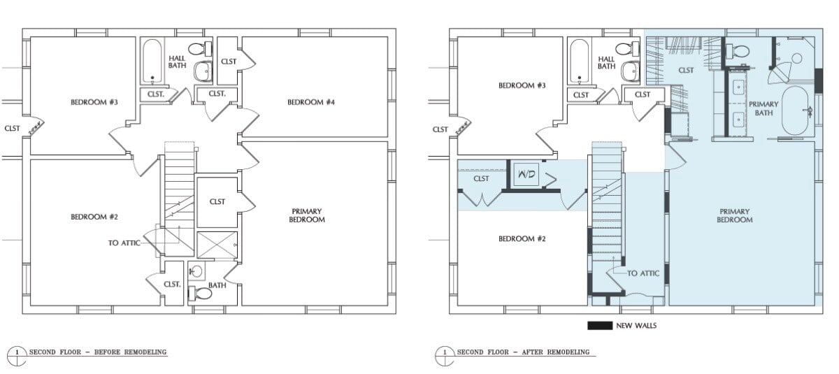
When existing bathroom space is not available, the next option is to “steal” space from an adjoining room. For a Bethesda client, we found space in two other bedrooms to convert for use as a primary suite bath. This made room for a nice sized bath, plus a dressing closet.
They went from a four-bedroom to a three-bedroom home but added value now and for resale by creating a much more desirable primary bathroom. We removed a staircase from one of the bedroom closets, changed the layout to create a hallway, and built a staircase there. This provided access to the attic which could be converted to a fourth bedroom in the future.
If all this were not enough, we were able to create a laundry area, moving that task up from the basement to where the clothes are actually located.


To create a new space that accommodates the entire wish list, a primary suite addition is the ideal option. For an American University Park client, we built a two-story addition, with a remodeled kitchen and living room on the first floor, and a beautiful new primary suite above.
The original primary bath was small and cramped. The objective was to move into a new larger bedroom with a bath, closets, and laundry perfectly sized for their needs. The original primary bedroom became a good-sized guest bedroom with a remodeled bathroom of its own as the new primary suite moved above the new family room addition.
For this project, the goal was not to provide a massive primary bathroom, but to include upgraded features that would make life easier and more enjoyable. For instance, the clients wanted plenty of light, so we added windows to the space, and added a remote to open and close the transom windows located above a set of mirrors. In the bedroom, we created a vaulted ceiling with wood beams and beadboard, and exposed brick on an accent wall.
This is a great example of a primary bedroom and bath upgrade being one aspect of a larger addition remodeling project.
Finding the right solution for a primary bathroom suite is a matter of personal choice and the right team of architects, interior designers and craftsmen. Whether it's a matter of reconfiguring an existing bathroom, finding space in adjoining rooms, or a full addition, understanding your needs and options makes all the difference.
Want to learn more about creating a spacious primary bathroom as part of your home renovation? If so, then please consider downloading the free eBook titled "The Essential Elements of Renovating an Older Home."
Leave a comment