Case Study
From Forgotten Attic Room to Quiet Zen Retreat
What was once an awkward, underused third-floor attic bedroom is now one of the home’s most memorable spaces. Initially scoped as a repair to failing plaster, the project evolved into a complete reimagining of the room, resulting in what the homeowners now affectionately refer to as their “Zen Room.”
Through thoughtful design, custom fabrication, and careful execution, our team re-envisioned a challenging attic as a serene guest retreat. The space now offers a boutique hotel–like experience—one that feels intentional, calming, and well worth the journey to the third floor!
Project Details
Type: Residential attic bedroom
before the transformation
An Awkward Space Without Purpose
The original attic bedroom suffered from a series of architectural challenges. Sloped ceilings intersected at uncomfortable angles, knee walls disrupted visual flow, and a poorly proportioned storage door behind the bed drew attention to the room’s limitations rather than its potential. Despite its square footage, the space felt confined and unresolved.
While the room technically served as a bedroom, it lacked cohesion and character. The homeowners sensed it could offer more, but the path forward required a design solution that addressed both the physical constraints of the attic and the experience of occupying the space.


the project plan
The Design Approach: Bringing Order to Complexity
Rather than working around the room’s limitations, Gilday’s design team chose to embrace them. The plan centered on introducing a bold architectural element that could unify the room visually while quietly resolving its functional challenges.
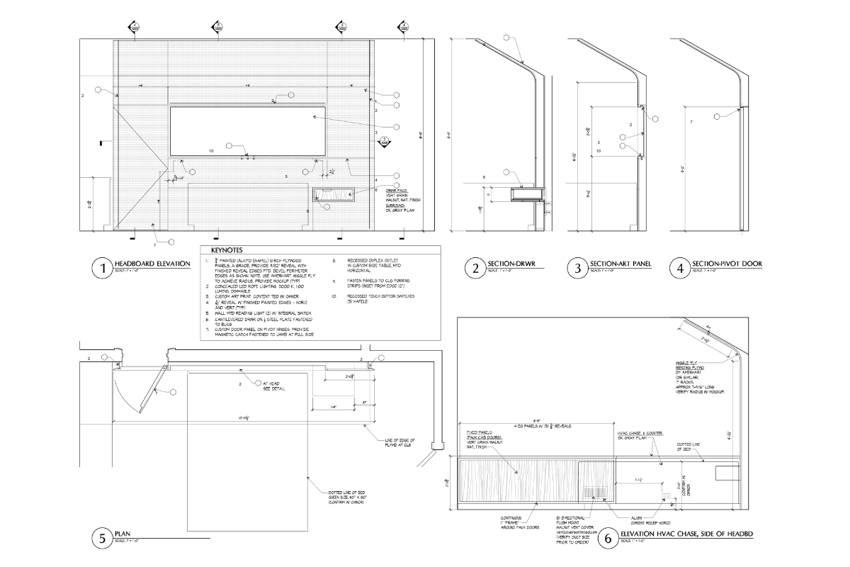
A custom curved headboard wall became the foundation of the design. This sweeping form masks complex ceiling lines, organizes the room, and establishes a strong focal point. Within the millwork, a concealed door provides discreet access to existing storage, preserving functionality without interrupting the clean composition.
Integrated push-control reading lights were built directly into the panels, providing adjustable illumination for bedtime reading while maintaining a calm, uncluttered aesthetic. Every design decision was made with intention, balancing beauty, comfort, and usability.
The Floorplan


the transformation

Material Choices That Shape the Mood
The curved headboard defines the room’s character. By replacing multiple visual interruptions with a single, sculptural surface, the space feels larger and composed despite its attic footprint.
The scale of the millwork brings balance, allowing the room to feel grounded rather than confined.
A Room Defined by Calm
Custom Japanese artwork was created specifically for the niche within the headboard, reinforcing the room’s tranquil, retreat-like quality.
The finish, a deep gray tone described as “wet elephant,” grounds the space and enhances the sculptural nature of the millwork.
Together, the materials create a calming atmosphere that feels distinct from the rest of the home, giving the attic a clear identity and purpose.


Storage Access, Seamlessly Integrated
The push-controlled storage access panel blends seamlessly into the surrounding millwork through carefully detailed reveals. These reveals vary subtly across the surface, creating rhythm and visual interest while concealing the door among fixed panels.
Craftsmanship in every Detail
Executing the headboard required a high level of precision. The millwork functions simultaneously as architectural expression, concealed storage access, and integrated lighting, all while maintaining a clean, uninterrupted appearance. Recessed reading lights and niche illumination sit flush within the millwork, reinforcing the clean, tailored appearance.
Full-scale mockups were developed to refine panel edges, hinge locations, and lighting placement. Each detail was tested and adjusted to ensure the final result felt intentional from every angle.


Overcoming Challenges Through Creative Problem-Solving
The curved headboard presented a series of design and construction challenges. To achieve the dramatic form, laminated plywood was engineered to bend smoothly while maintaining strength. Beneath the finished surface, an unseen backup framework provides structural support without compromising the clean appearance.
One of the greatest challenges was concealing attachment points and fasteners entirely. This required close collaboration between the designer, millworker, and carpentry team. While the panels were fabricated off-site, the supporting framework was constructed on-site and integrated seamlessly during installation.
Multiple iterations and mockups ensured the final execution this attic renovation met both aesthetic and functional goals. The result is a unified composition that integrates storage access, lighting, and custom artwork into a single, refined architectural feature.
The final result: A Space with Purpose and Presence
Today, the attic bedroom is no longer overlooked. It has become a serene retreat that invites use and appreciation. The room feels intentional, calming, and thoughtfully resolved, offering guests a cozy and memorable experience.
This remodel reflects the value of working with a design-build firm like Gilday Renovations. From concept through construction, every decision was guided by experience, collaboration, and a deep understanding of how design can improve daily life. What began as a simple repair became a carefully crafted space that gives new meaning and purpose to the home’s third floor.
Home renovation discovery session
Our home renovation discovery sessions are organized around you: your needs, style preferences, and desire to make the home you have the best it can be.
You can expect our staff to ask many questions, listen, and provide you with actionable information. We’ll help you prioritize, get a clear sense of the project scope, and help you gain a sense of your budget. Everything you need to know to take the next step in your home renovation.